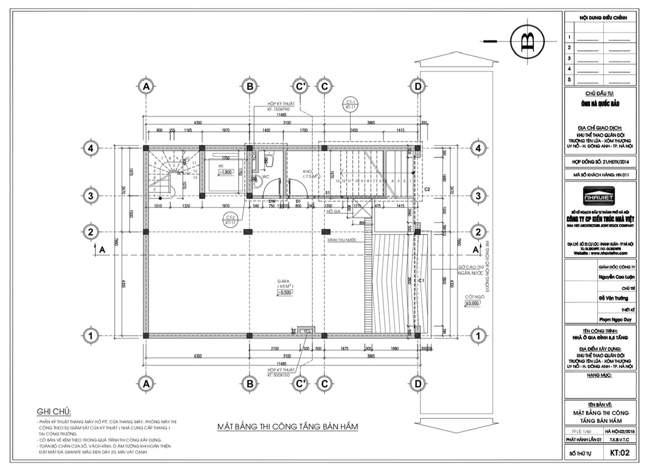
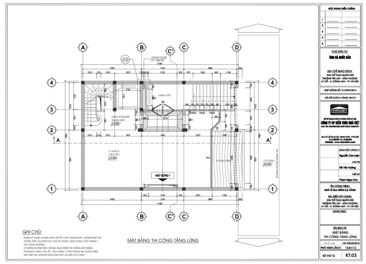
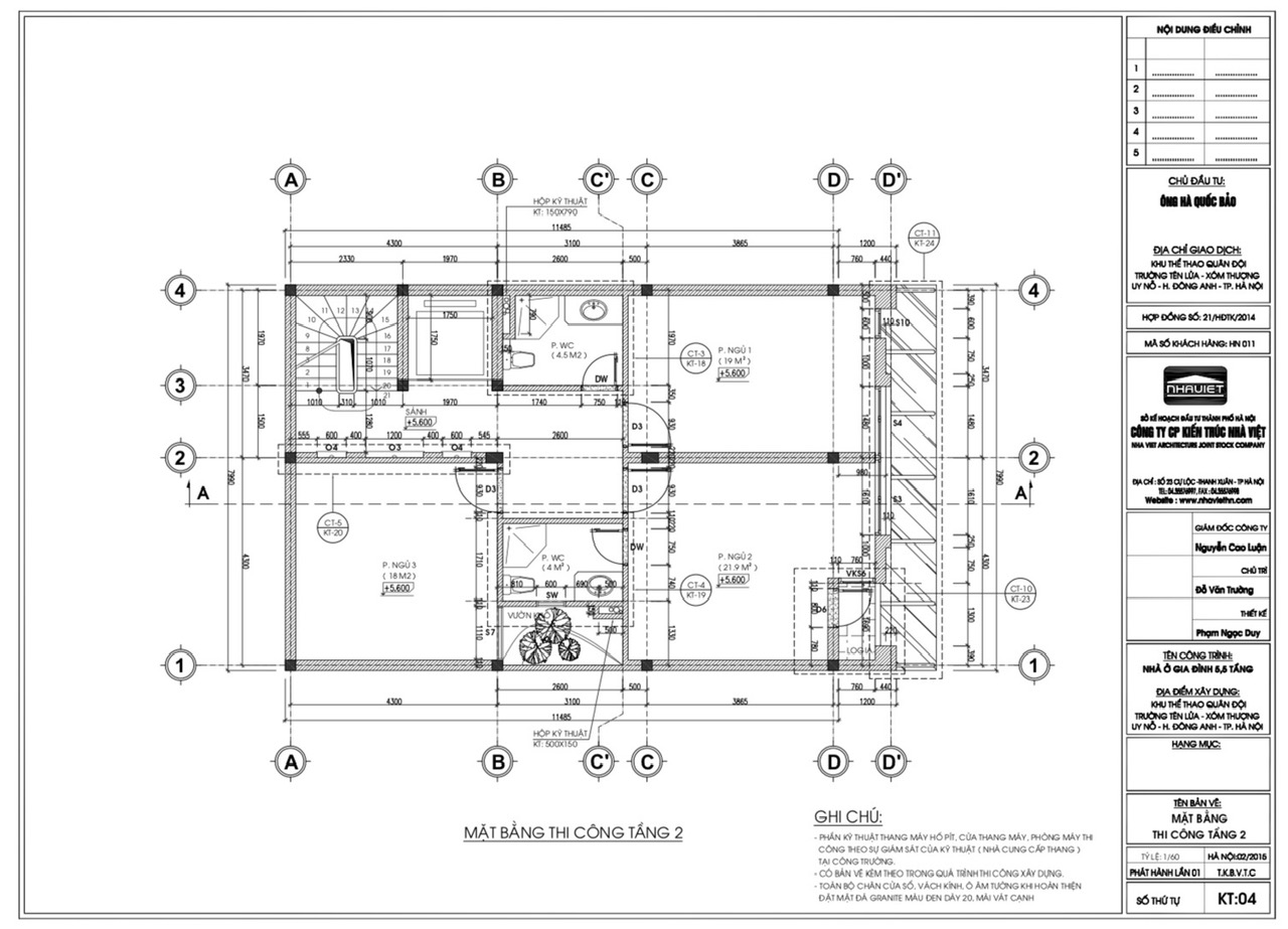
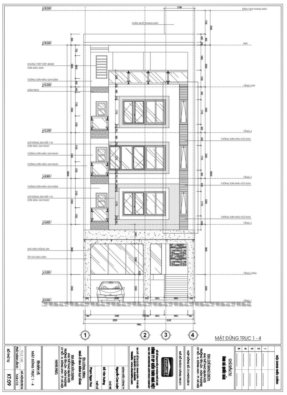
(Mã số: 0186)
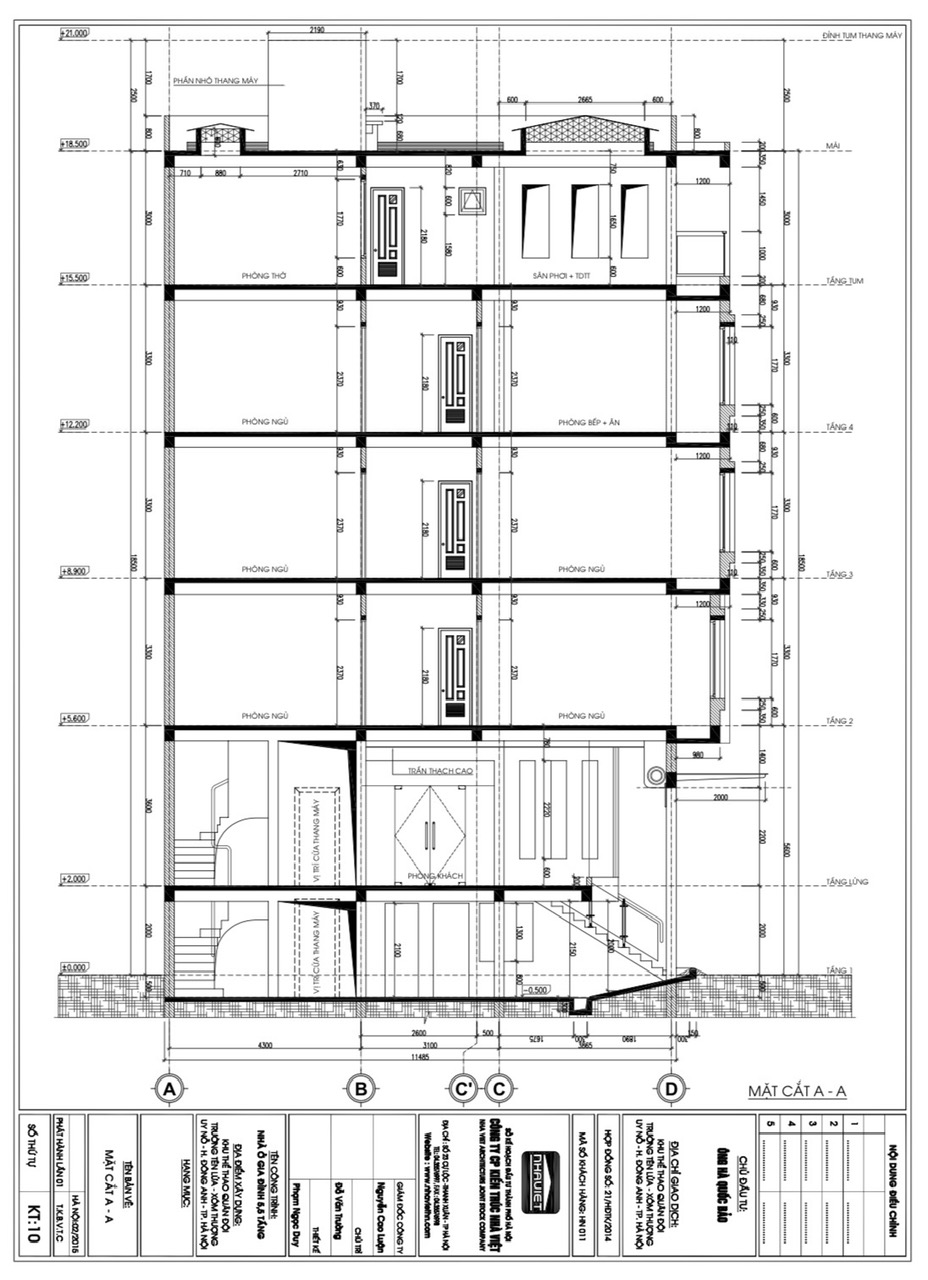
Thiết kế Nhà phố 6 tầng - Kiến trúc Hiện đại. Mặt tiền 4,4 x 19m. Uy Nỗ, Đông Anh, Hà Nội. Hoàn thành Xây dựng tháng 05, năm 2024.
Liên hệ Thiết kế Thi công Nhà đẹp:
http://nhaviethn.com - Email: kientrucnhaviethn@gmail.com - Hotline|Zalo: 0789000999





