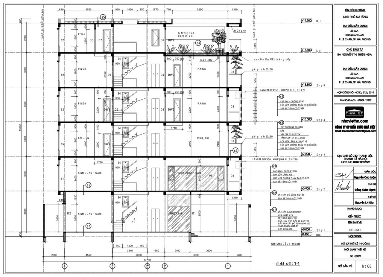
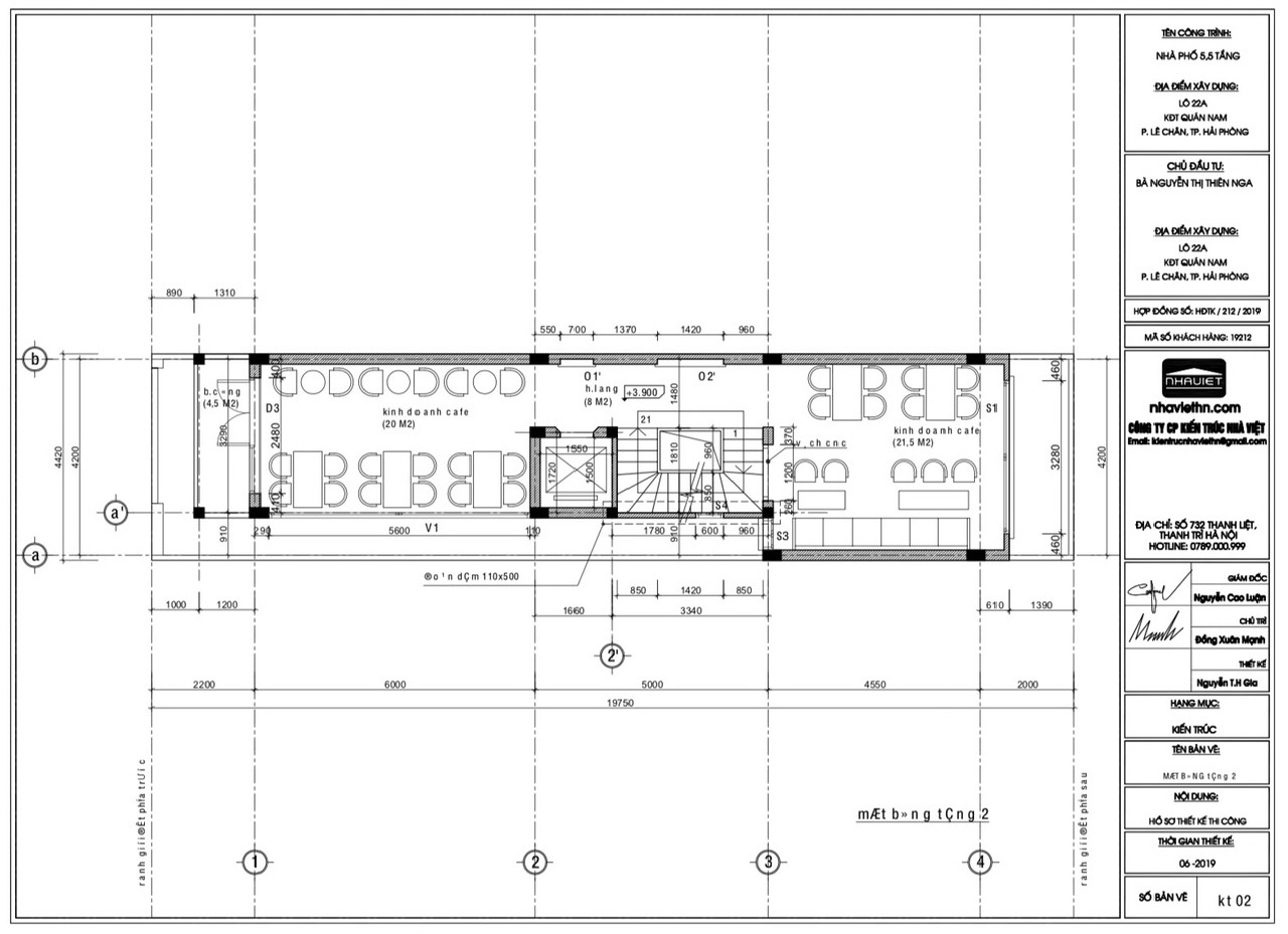
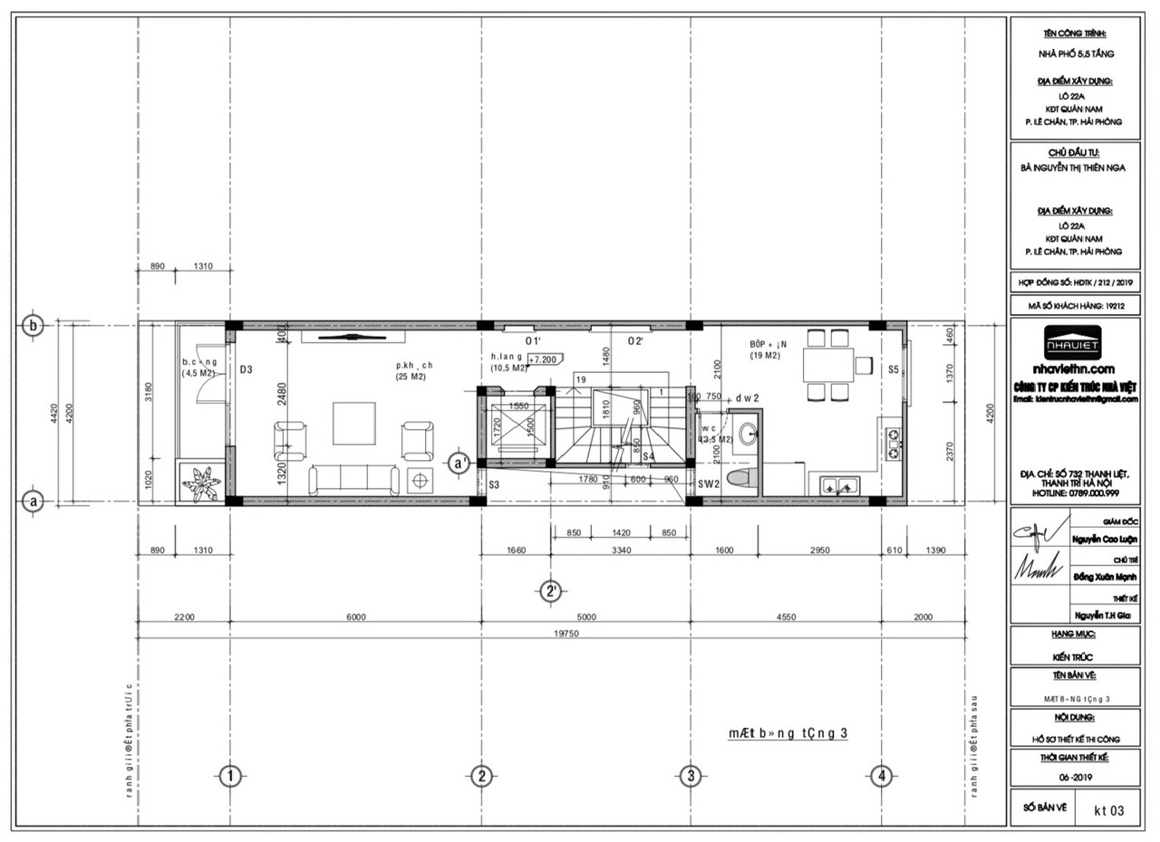
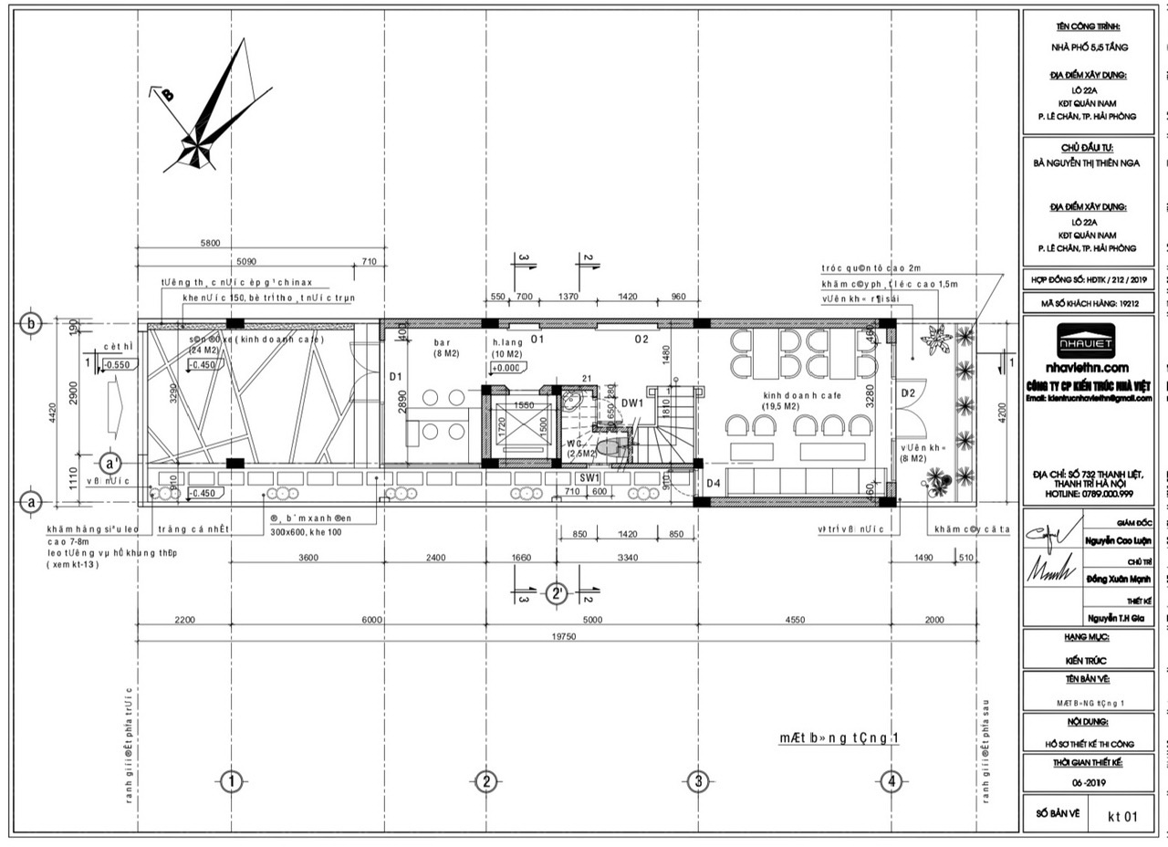
(Mã số: 0330)
Thiết kế Nhà ngõ phố 5 tầng - Kiến trúc Hiện đại. Mặt tiền 4,4 x 19m. Quán Nam, Hải Phòng. Hoàn thành Xây dựng tháng 07, năm 2024.
Liên hệ Thiết kế Thi công Nhà đẹp:
http://nhaviethn.com - Email: kientrucnhaviethn@gmail.com - Hotline|Zalo: 0789000999







